


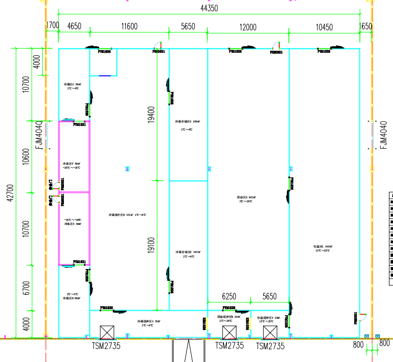
北京華欣供應鏈管理有限公司1890平醫(yī)藥物流冷庫建造項目,設有2~8℃藥品冷藏庫,-15~-25℃藥品疫苗冷凍庫,2~20℃藥品陰涼庫,15~20℃恒溫庫等。

華欣供應鏈總部設立于北京。多年來,專注于醫(yī)藥物流服務。業(yè)務涵蓋常溫及溫控藥品、疫苗、診斷試劑、臨床醫(yī)藥、醫(yī)療器械等產品的國內運輸配送及其增值服務。具備航空、公路、鐵路及多式聯運能力,自建專業(yè)化全國運營的醫(yī)藥溫控運輸車隊,能為醫(yī)藥類客戶提供可靠高效、服務領先、傳遞價值的服務。華欣物流經過十余年的努力,匯集和培養(yǎng)了一批懂管理、精通現代醫(yī)藥供應鏈與物流的專業(yè)化人才,逐步形成了醫(yī)藥物流運作經驗豐富的知識型創(chuàng)新團隊。華欣物流是國內第三方物流公司中最早與新版GSP接軌的物流公司之一,具備執(zhí)業(yè)藥師和中級職稱等專業(yè)人才。目前公司服務于眾多國內外知名醫(yī)藥生產企業(yè)、醫(yī)藥分銷及其分子公司等企業(yè),為客戶提供一體化、一站式綜合醫(yī)藥運輸配送服務。
